Dapatkan Promo Special Dari Kami!
Putra Estate Pekanbaru – Hunian Elegan & Bergaya Minimalis
Putra Estate Pekanbaru menawarkan rumah modern dengan desain elegan, interior mewah, dan lokasi strategis di tengah kota. Hunian nyaman dan siap huni untuk anda
Tim Indogsc
2 min read


🏡 Putra Estate Pekanbaru – Hunian Nyaman, Strategis, dan Bebas Banjir di Jl. Kartama Maharatu
📍 Lokasi Strategis, Akses Mudah ke Pusat Kota
Perumahan Putra Estate Pekanbaru berlokasi di Jl. Kartama, tepat di depan Kantor Lurah Maharatu, sebuah kawasan yang kini berkembang pesat menjadi salah satu area hunian favorit di Kota Pekanbaru. Lokasinya yang sangat strategis membuat penghuni mudah menjangkau berbagai fasilitas umum seperti sekolah, rumah sakit, pusat perbelanjaan, dan akses ke jalan utama kota.
Selain itu, area Kartama dikenal dengan lingkungan yang asri, bebas banjir, dan memiliki nilai investasi yang terus meningkat, menjadikan Putra Estate pilihan ideal untuk keluarga muda maupun investor properti jangka panjang.
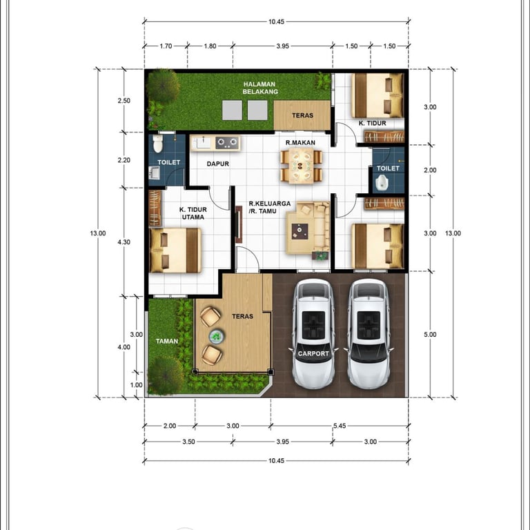
🏠 Pilihan Unit & Denah Rumah Putra Estate
Putra Estate menawarkan beberapa tipe rumah modern minimalis yang dirancang dengan tata ruang efisien, pencahayaan alami yang maksimal, serta area hijau yang nyaman untuk keluarga.
1. Type 62 / 126
Luas Bangunan: 62 m²
Luas Tanah: 126 m²
Fasilitas:
2 Kamar Tidur
2 Kamar Mandi
Ruang Tamu & Keluarga
Dapur
Teras depan & belakang
Carport 2 mobil
Taman depan dan halaman belakang
Type ini cocok untuk keluarga kecil yang menginginkan kenyamanan dan fungsionalitas tanpa kehilangan keindahan desain rumah.
2. Type 75 / 135
Luas Bangunan: 75 m²
Luas Tanah: 135 m²
Fasilitas:
3 Kamar Tidur
2 Kamar Mandi
Ruang Keluarga & Tamu luas
Dapur dan ruang makan terpisah
Taman depan dan belakang
Carport untuk 2 mobil
Type 75/135 menawarkan ruang yang lebih luas dan nyaman bagi keluarga dengan dua anak atau yang sering menerima tamu.
3. Type 78 / 137
Luas Bangunan: 78 m²
Luas Tanah: 137 m²
Fasilitas:
3 Kamar Tidur
2 Kamar Mandi
Ruang makan & ruang keluarga besar
Dapur dengan ventilasi optimal
Taman depan hijau dan halaman belakang luas
Carport 2 mobil
Tipe 78/137 menjadi pilihan terbaik bagi keluarga besar yang ingin hunian luas, modern, namun tetap hemat energi dan mudah dirawat.
💰 Harga & Skema Pembayaran Fleksibel
Putra Estate menyediakan sistem pembayaran yang sangat fleksibel untuk berbagai kebutuhan pembeli:
Tipe Rumah Harga Cash DP Ringan Cicilan (15 Tahun)
Type 62 / 126 Rp 575 Juta Mulai dari Rp 5 Juta ± Rp 4,3 Juta / bulan
Type 75 / 135 Rp 675 Juta Mulai dari Rp 5 Juta ± Rp 4,8 Juta / bulan
Type 78 / 137 Rp 725 Juta Mulai dari Rp 5 Juta ± Rp 5,2 Juta / bulan
Dengan DP hanya 5 juta hingga akad kredit, pembeli bisa segera memiliki rumah impian tanpa beban berat di awal.
🌳 Keunggulan Utama Putra Estate Pekanbaru
✅ Lokasi Strategis di jantung Kartama, dekat fasilitas umum
✅ Lingkungan Aman & Nyaman, cocok untuk keluarga
✅ Bebas Banjir, struktur tanah keras dan drainase baik
✅ Desain Modern Minimalis dengan pencahayaan alami
✅ Sertifikat SHM (Hak Milik) – legalitas jelas dan aman
✅ Akses 2 Mobil & Halaman Luas
✅ Nilai Investasi Tinggi karena kawasan berkembang pes
🏗️ Siteplan & Blok Plan Lengkap
Putra Estate Tahap 2 terdiri dari beberapa blok hunian teratur dan rapi, dilengkapi dengan:
118 Unit Rumah di berbagai tipe
8 Unit Kios Komersial
Taman dan Area Bermain Anak
Jalan Lingkungan Lebar dan Rapi
Saluran Air dan Drainase Lancar
Desain siteplan dibuat agar setiap unit memiliki sirkulasi udara dan cahaya yang optimal, menciptakan hunian sehat dan nyaman untuk jangka panjang.
📍 Lokasi di Google Maps:CCRM+MQF, Gg. Bersama, Perhentian Marpoyan, Kec. Marpoyan Damai, Kota Pekanbaru, Riau 28293
👉 Lihat Lokasi di Google Maps
📞 Hubungi Kami untuk Info & Promo Terbaru
Ingin survei lokasi atau mendapatkan simulasi KPR?
📲 Hubungi: 08137101171
Dapatkan promo spesial untuk pembelian unit bulan ini!
Gallery
Putra Estate Pekanbaru menawarkan rumah modern dengan desain elegan, interior mewah, dan lokasi strategis di tengah kota. Hunian nyaman dan siap huni untuk keluarga modern di Pekanbaru.
















Build your own dreams
Putra Estate Pekanbaru – Hunian Mewah Bergaya Minimalis Modern di Lokasi Strategis
